ID
927139
Тип котеджу
Будинок
Кімнат
3
Поверховість
3
Площа
169.5м²
Ділянка
12.5сот
Площа кухні
36м²
Стан
Ремонт
Населений пункт
с. Гута
$466 000
$2 749/м²
Приватний будинок в Карпатах, с-ще Стара Гута
Приватний будинок мрії в серці Карпат – с. Стара Гута
урочище Закут
Пропонуємо унікальну можливість придбати будинок з клеєного
бруса в екологічно чистій, мальовничій місцевості з краєвидом на
ліс та гори.
Простір, що надихає:
• Панорамні вікна з неймовірним видом на природу;
• Простора тераса з виходом із вітальні — ідеальна для ранкової
кави або вечірніх посиденьок;
• Барбекю-зона для відпочинку з родиною та друзями;
• СПА-зона для відновлення та релаксу: джакузі, сауна, басейн.
• Паркінг зона для 2-х авто з можливістю встановлення зарядної
станції для електромобіля.
Інтерʼєр преміум-рівня:
• Ергономічне планування та функціональний простір;
• Кухня-студія з каміном — затишок та сучасний стиль;
• Окремі гардеробні кімнати;
• Авторський дизайн із меблями та аксесуарами від провідних
українських та світових брендів;
Площа ділянки: 12соток (0,12га).
Площа забудови 118м2
, в тому числі тераса 21,8м2
Загальна площа 169,5 м2
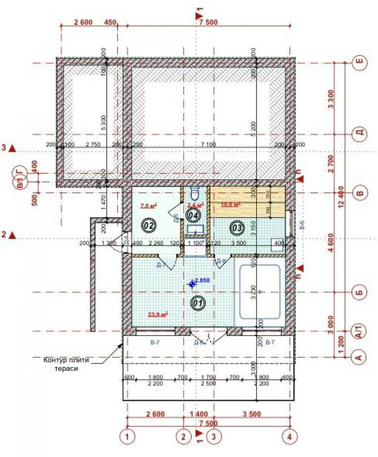
Цокольний поверх(СПА-зона)включає такі приміщення:
1. Тамбур-гардеробна
2. Кімната відпочинку
3. Сауна
4. Санвузол
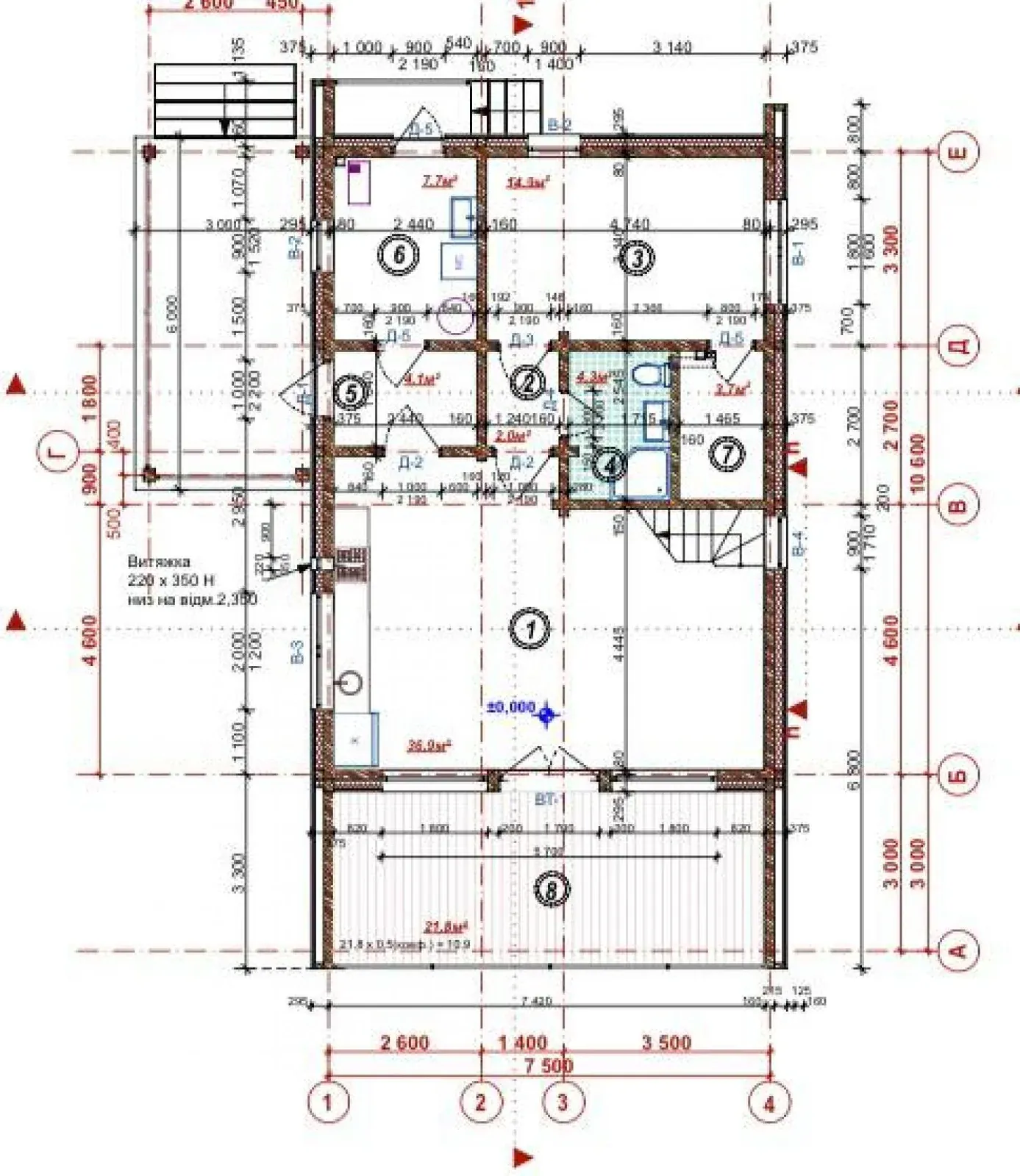
Перший поверх:
1. Кухня-вітальня
2. Спальня з власним гардеробом
3. Тамбур
4. Санвузол
5. Господарська\технічна кімната
6. Тераса
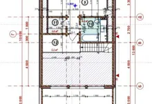
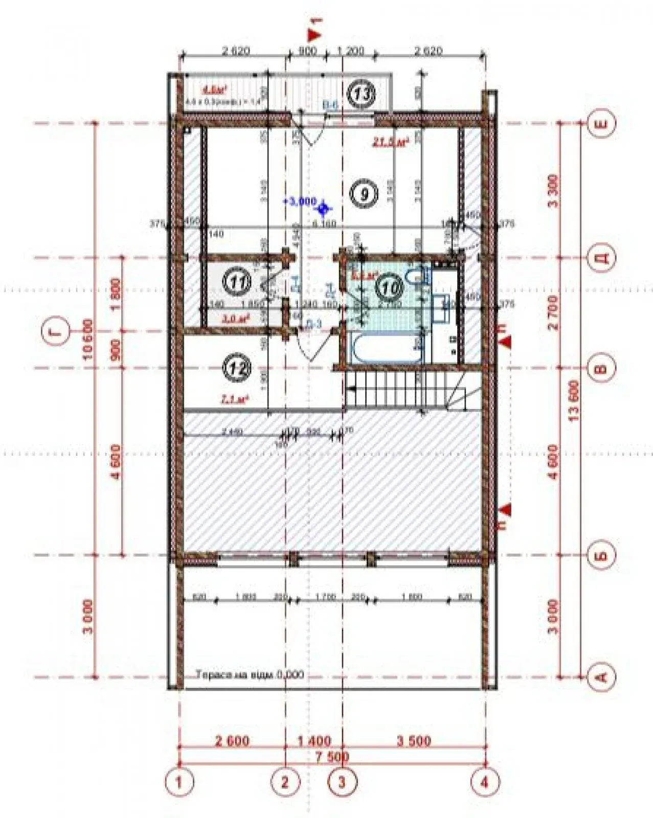
Другий поверх(мансарда):
1. Балкон внутрішній
2. Спальня з власним санвузлом та гардеробом
3. Санвузол
4. Гардероб
5. Балкон
Будівництво та якість:
• Клеєний брус 160×190 мм — надійність, тепло та довговічність;
• Терасна дошка з модрини 35 мм — стійкість до вологи та
елегантний вигляд;
• Енергоефективні багатокамерні мансардні склопакети
VELUX— максимальна теплоізоляція;
• Фасад і дах з клік-фальцю Thyssen Krupp Німеччина, утеплення
даху мінеральною ватою 200 мм, утеплення зовнішніх стін 150
мм — гарантія герметичності та захисту від будь-якої погоди.
За бажанням — можливість замовити індивідуальний
ландшафтний дизайн (не входить у вартість).
Хочете не просто будинок, а місце сили, гармонії та натхнення?
Тоді цей варіант саме для вас. Запрошуємо на перегляд
Будинок на етапі будівництва

ЗВʼЯЗОК З МЕНЕДЖЕРОМ
Ольга Івахненко
+380 (50) 960 73 13

